Rapallo Via Toti 83 mq. da riordinare Eu. 178.000

Rapallo (Genova) - zona Sant'Anna

Rif: IMMO-123537443
Condividi Linkedin Whatsapp Stampa
€ 178.000
Appartamento
83 Mq
3 Vani
Classe energetica G
2 Camere
1 bagno
Ascensore
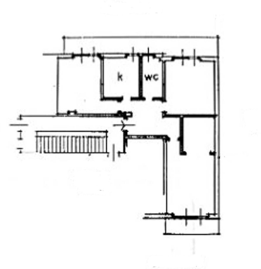
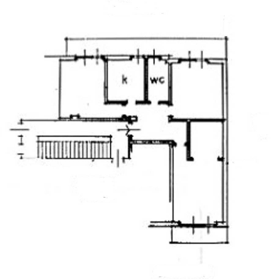
Rapallo Via Toti 83 mq. parzialmente da ristrutturare Eu. 178.000 . A circa 1,5 km dal mare , pianeggiante , luminoso e soleggiato piano alto composto da : ampio ingresso . grande soggiorno con balcone , cucina indipendente con balconata , camera matrimoniale , camera medio ampia , bagno con finestra . Le foto e l'indirizzo che potrebbe risultare dalla geolocalizzazione fatta a cura dei portali sono solo indicativi della zona e non specifici dell'immobile in oggetto. Agenzia Immobiliare Zerega dal 1958 in via della libertà a Rapallo ( GE. ) ( ex sede storica: via della libertà 70 ) aperta negli ultimi mesi del 1957 con licenza di pubblica sicurezza. intestata a Zerega Vanda in Ardito. contratto fornitura energia elettrica del 1958. Anno 1962: istituzione del ruolo agenti di affari in mediazione. camera del commercio di Genova: Zerega Vanda in Ardito: numero di ruolo 334 dal 07 / 05 / 1963 ramo beni immobiliari. Oltre sessant'anni di attività ininterrotta a conduzione della stessa famiglia e tramandata da madre a figlio.

Dettaglio immobile

Contratto Vendita
Rif IMMO-123537443
Prezzo € 178.000
Provincia Genova
Comune Rapallo
Zona Sant'Anna
Indirizzo Via Enrico Toti
Superficie 83 mq
Vani 3
Camere 2
Bagni 1
Classe energetica G (DL 90/2013)
EPgl,nren 123,09 kwh/m2 anno
Piano 4 / 6
Riscaldamento centralizzato
Condizioni da ristrutturare
Spese condominiali € 140
Anno di costruzione 1960
Ascensore si
Cucina semiabitabile
Balcone si

Consistenze

Descrizione Superficie Sup. comm.
Principali
Immobile - 4° piano 83 Mq 83 Mqc
Totale 83 Mqc

Planimetrie

Richiedi maggiori informazioni

Autorizzazione al trattamento dei dati personali+
Dichiaro di aver letto l'informativa sulla privacy ed accetto le condizioni d'utilizzo del servizio.
Riempi il campo con il codice riportato nell'immagine*
Codice Captcha
Chiamaci Contattaci